Home Designs
Our home designs are shaped by the success of our past builds — combining smart layouts, practical functionality, and timeless street appeal. Each design is crafted to deliver a home that feels as good as it looks.
Contact us for further details on your favourite plan!

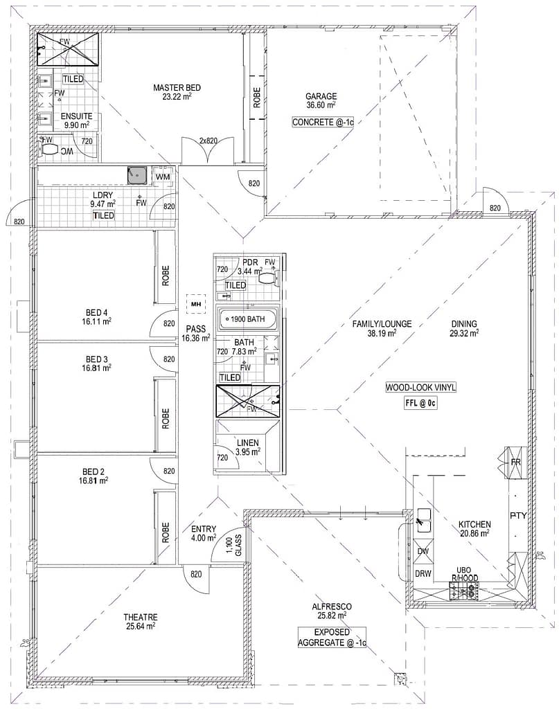
The Bathers
4
2
2
16 m
20 m
308 sqm
Theatre
Alfresco
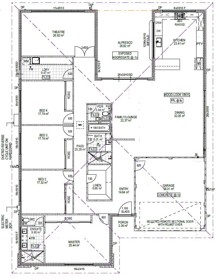
The Bettong
- 335 sqm
- 4 bedroom
- 2 bathroom
- Theatre
- 2 car garage
- Large alfresco


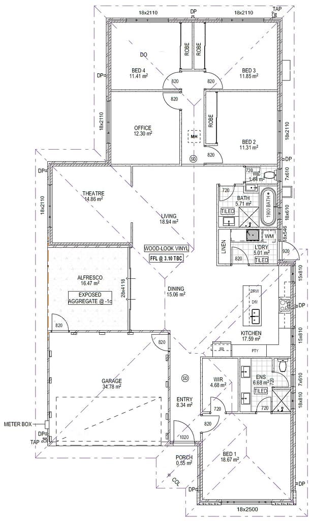
The Eden
- 4 bedroom
2
- Theatre
- 2 car garage
- Rear alfresco
The Meelup
- 240 sqm
- 4 bedroom
- 2 bathroom
- Theatre
- Home Office
- 2 car garage
- Alfresco

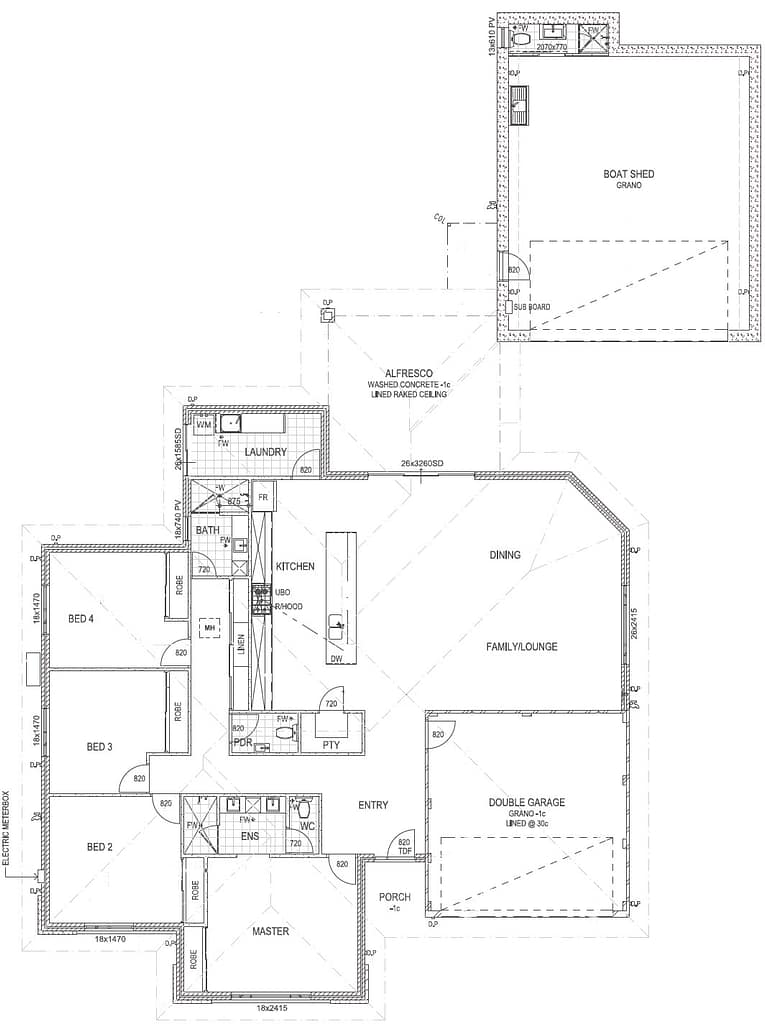
The Swift
- 4 bedroom
- 2 bathroom
- 2 car garage
- Alfresco
- Detached boat shed

